
domácí síť s O2
Dobrý den,
rád bych se poradil, jaká zařízení budu potřebovat pro domácí síť a jak je propojit.
Budeme mít DSL od O2 s IPTV. O2 nám vnucuje jejich modem ZTE H267A. Nevím, jestli je vhodný (dle mého je předražený).
Dům máme o 3 patrech, kde v každém patře uvažujeme o wifi a minimálně jedné TV (celkově 4). Jde o starý dům s kvalitními stropy :D nyní wifi router z 2. patra nedosahuje signálem do jiných pater. Takže počítám se 2 AP.
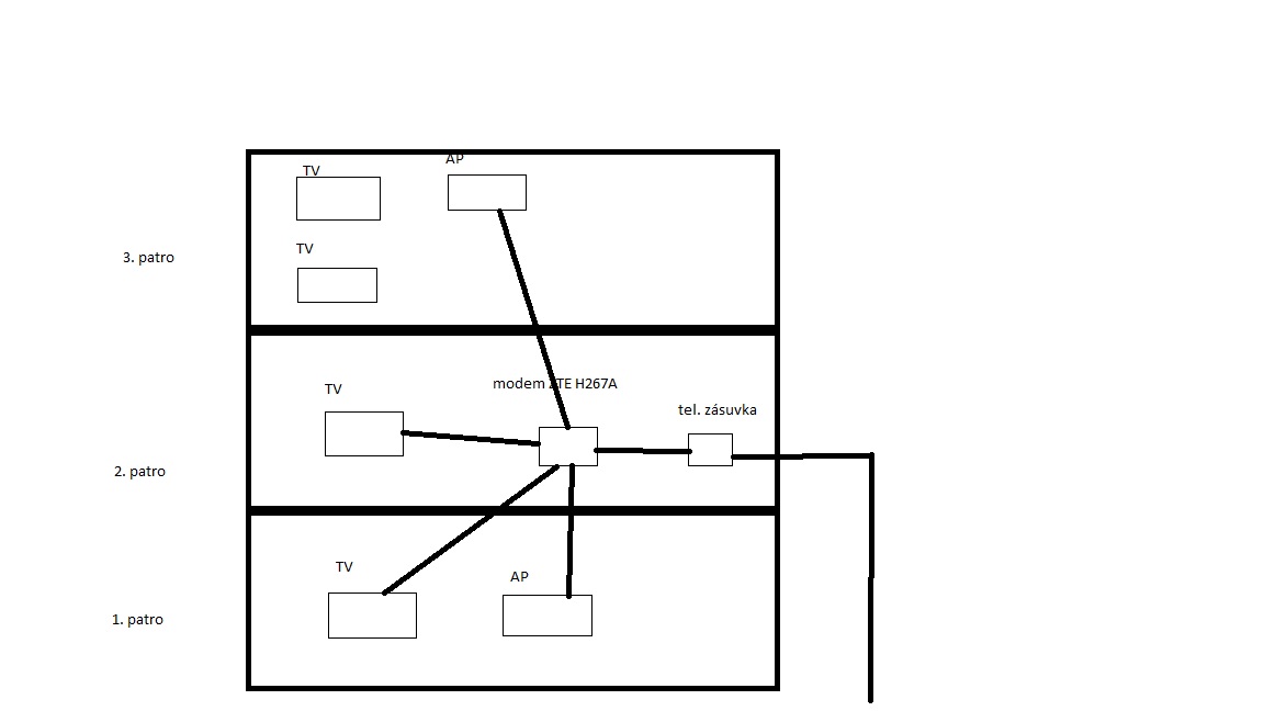
Zkusil jsem to v příloze načrtnout. Nevím, jaká zařízení budou potřeba a jak je zapojit. A jestli brát ZTE H267A. Protože třeba tento modem od O2 má 2 porty pro internet a 2 porty pro TV.
Děkuji
Martin
Kazde poschodie by malo mat jedno AP. Kedzze po dome sa budete pohybovat zobral by som nieco s centralnym managmentom kvoi roamingu.
Odskusane mam len UBNT a Mikrotik, oboje funguje velmi spolahlivo (desiatky AP, plnuly prechod medzi nimi bez vypadkov).
Kvoli IPTV musis asi pouzit ako branu ten O2 modem.
Takže jako první by byl O2 modem, za ním centrální router, z kterého by šly kabely do 2 AP dalších pater. Tím by se vyřešil internet. A ty 4 TV by byly připojeny jak? 2 TV do toho O2 modemu a 2 TV ve třetím patře do AP? Půjde to?
No ale ke každé té TV budeš potřebovat zase ten box...jinak budeš koukat na to samé..?
Nebo budeš používat nějakou tu aplikaci v TV..?
Jestli si dobře vzpomínám, tak ty porty jsou volitelně přepínací - třeba 4 x LAN nebo 4 x TV + jejich kombinace...
Kdyby chtěl O2 TV sledovat na více zařízeních, musel by si dokoupit balíček Rodinné sledování.
https://www.o2.cz/osobni/televize#m-neco-tomu-chybi-pridejte-si-extra-balicek
Ano, to je plánované. O2 standardně k připojení dává jednu TV. To nám ale nestačí, takže bychom šli do tohoto balíčku.
Na to samé určitě ne. Nejdřív bychom odzkoušeli aplikace. Pokud by to nevyhovovalo, přidali bychom k TV boxy.
Ale jak jsem studoval manuál k tomu dodávanému O2 modemu tady: https://www.o2.cz/osobni/podpora/nastaveni-zte-h267a-5g#accordion-a46345-a46396 tak jsem pochopil, že 4x TV nejde, maximálně 2. Ale i kdyby šli všechny 4 na TV a použil bych je, tak už nemám port na distribuci internetu.
ptej se o2, co nabízí pro 3+ televize.
No DSL modem budes potrebovat tak jako tak, takze bud od O2 nebo neco vlastniho.
Ten modem bych prepl do bridge modu a spojeni inicializoval az z routeru za nim. Za routerem postavit celou vlastni lokalni sit, tj. alespon 3ks wifi pristupovych bodu (AP), switch (idelane s moznosti PoE).
Pro domaci pouziti si muzes vybrat bud Mikrotik, pripadne trosku uzivatelsky pohodlnejsi Ubiquiti Unifi. Ano bude to stat nejake penize, ale bude to fungovat... nebo to muzes placat dohromady z toho co dum dal, kazdy sveho stesti (a pohodli) strujcem